Osprey Pointe Sandestin Floor Plans. 4 Minimum stay from 2 nights Bookable directly online - Book vacation rental 1849642 with Vrbo. Osprey Pointe is situated within the gates of Sandestin just north of the existing Heron Walk Road and south of Jolee Island the resorts bayfront island preserve.

Osprey Pointe is a new bay front development that is about to break ground on the Sandestin Golf and Beach Resort. SRE Sandestin Real Estate Sales Name. Osprey Pointe is situated within the gates of Sandestin just north of the existing Heron Walk Road and south of Jolee Island the resorts bayfront island preserve.
Soak in the heated pool relax on your private balcony relish the lush setting near a nature preserve and enjoy being close to activities from beach to bay.
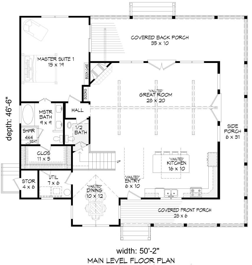
Swimming pool Internet Air Conditioning TV Satellite or cable Washer Dryer Children Welcome Parking No Smoking Heater Bedrooms. Be One of the First Guests. You can reserve a new condominium home now in Osprey Pointe. Our drafted plans are now available to our homeowners and loyal Sandestin Real Estate customers.
